Negozio in affitto

Ponsacco, Via Valdera Pontedera
10 locali 10 locali
1521 Mq 1521 Mq
2 bagni 2 bagni

Negozio in affitto

Ponsacco, Via Valdera Pontedera

Descrizione annuncio

Ponsacco – Via Valdera
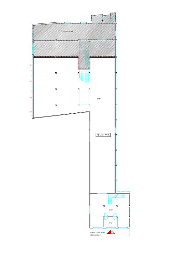
Immobile commerciale D/8 di ampia metratura con tre vetrine fronte strada

In posizione strategica e ad alto passaggio, proponiamo in locazione immobile commerciale (categoria D/8) di circa 1.521 mq complessivi, disposto su due livelli e caratterizzato da tre ampie vetrine fronte strada su Via Valdera, che garantiscono grande visibilità e impatto commerciale.

L’immobile si sviluppa su ampi open space sia al piano terra che al piano primo, collegati da due vani scala posizionati nella parte frontale e sul retro, permettendo una gestione fluida degli spazi e una facile organizzazione delle attività.

Grazie alla sua configurazione e alla metratura importante, l’immobile si presta perfettamente a showroom, esposizioni, attività commerciali strutturate o sedi operative con necessità di ampi spazi.

Completa la proprietà un resede esclusivo di circa 258 mq con accesso diretto, ideale per operazioni di carico/scarico, parcheggi o spazi a servizio dell’attività.

L’immobile è inserito in un contesto facilmente accessibile e ben collegato, elemento fondamentale per attività che necessitano visibilità e comodità per clienti e fornitori.

Info e visite
Per ulteriori informazioni o per fissare un appuntamento contatta Leonardo Guerrini al 320 7028306.

Lavora con noi
Assumiamo ragazzi e ragazze, anche senza esperienza, da avviare alla professione di Agente Immobiliare. Contattaci per maggiori informazioni.

Mostra tutto

Nelle vicinanze

Trasporto pubblico Trasporto pubblico
Trasporto pubblico
2,3 Km
Ricariche auto elettriche Ricariche auto elettriche
Giadil Consulting - Noleggio a lungo Termine | EnelX
1,8 Km
COOP Pontedera | EnelX
2,9 Km
Eneldrive Parcheggio del Cimitero
2,9 Km
Scuole Scuole
Scuola Secondaria di I grado Niccolini
500 m
Scuole
2,2 Km
Farmacia Farmacia
Farmacia Gasperini
720 m
Farmacia Santarsiero
1,1 Km
Farmacia Comunale Le Melorie
1,4 Km
Ospedali Ospedali
Misericordia Ponsacco
780 m
Supermercati Supermercati
Penny Market
310 m
SIMPLY SMA
470 m
Centro commerciale Corte Nuva
640 m
Lidl
840 m
Coop
890 m
Negozi Negozi
Panetteria Vecchio Forno
310 m
OVS
660 m
Intimo Antonella
680 m
Negozi
680 m
Bar Bar
Bar La Mostra
360 m
Bar La Posta
840 m
Bar
1,9 Km
Ristoranti Ristoranti
Ristorante La Mostra
350 m
american bar
1,8 Km
Autogrill Gello
2,9 Km
Mostra tutto

Caratteristiche

Rif.:
61203455
Piano:
Terra con giardino di 1
Totale piani:
1
Posti auto:
10
Condizionamento:
Autonomo
Ascensore:
No
Mostra tutto
Prezzo Prezzo
€ 7.500 / mese
Spese annue Spese annue
€ 0
Anche in vendita a

Classe Energetica

G
G
G
G
G
G
G
G
G
EP globale non rinnovabile:
0.00 kW h/m² anno
EP globale rinnovabile:
0.00 kW h/m² anno
EP invernale del fabbricato:
EP estiva del fabbricato:
Anno di costruzione:
1970
Riscaldamento:
Autonomo
Tipo impianto:
Ad aria
Tipo alimentazione:
Altro

Ti interessa visionare l'immobile?

Fissa un appuntamento  Fissa un appuntamento

Richiedi informazioni

Clicca su Leggi per aprire l'informativa
* Questi campi sono obbligatori
Affiliato
Impresa Valdera Srl
Via Sandro Pertini, 28 56012 Calcinaia (PI)

Il nostro staff


  • Asia Mozzachiodi
    Coordinatrice

  • Leonardo Guerrini
    Affiliato
Via Sandro Pertini, 28 56012 Calcinaia (PI)
Zona: Calcinaia - Pontedera
Mostra su mappa
Affiliato
Impresa Valdera Srl
Via Sandro Pertini, 28 56012 Calcinaia (PI)

2026 Tecnocasa Franchising S.p.A. - P. IVA 08365160152 - Via Monte Bianco 60/A 20089 Rozzano (MI). Ogni agenzia ha un proprio titolare ed è autonoma. Privacy policy | Policy utilizzo | Cookie policy