Capannone in vendita

Pontedera, Via Dante Alighieri
€ 239.000
Prezzo aggiornato
5 locali 5 locali
350 Mq 350 Mq
2 bagni 2 bagni

Capannone in vendita

Pontedera, Via Dante Alighieri

Descrizione annuncio

B/5 – Immobili collettivi (ex scuola)

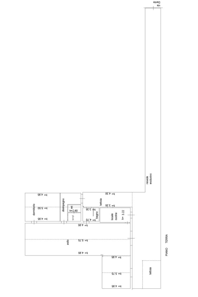
Proponiamo in vendita un complesso di circa 300 mq corredato da una superficie esterna esclusiva di 280 mq, situato in Via Dante, a due passi dalla stazione ferroviaria e dai principali servizi.

DESCRIZIONE E PARTICOLARITÁ

L’immobile offre inoltre la possibilità di cambio di destinazione d’uso, con un progetto già disponibile in agenzia per la realizzazione di due unità abitative, rendendolo particolarmente adatto anche come investimento.

L’accesso alla proprietà avviene tramite cancello carrabile che conduce all’area esterna.
L’ingresso si apre su un ampio ambiente open space con altezza sotto trave di 4,95 metri e altezza centrale di 5,75 metri.
Il fabbricato si distingue per lo stile architettonico originario, caratterizzato da pareti in mattoni faccia vista e lucernari motorizzati. Nella parte frontale troviamo un accesso principale con ampia porta vetrata, affiancata da due finestre provviste di inferriate.

L’impianto elettrico è a vista ed è già dotato di cablaggio dati, mentre l’impianto di climatizzazione comprende dieci fancoil Ferroli e un grande split Mitsubishi.

Oltre al locale principale sono presenti una stanza adibita a dormitorio, un locale cucina e due bagni, di cui uno finestrato.

IDEALE ANCHE PER INVESTIMENTO.

UBICAZIONE E CONTESTO

La posizione centrale, unita alla possibilità di trasformazione in più unità immobiliari, rende questo immobile un’opportunità concreta sia per chi cerca uno spazio da riadattare a proprie esigenze sia per chi desidera un investimento di valore.

Per maggiori informazioni o per fissare un appuntamento, contatta il numero 320 7028306.

Mostra tutto

Nelle vicinanze

Trasporto pubblico Trasporto pubblico
Pontedera - Casciana Terme
Pontedera - Casciana Terme
280 m
Duomo
Duomo
270 m
Trasporto pubblico
800 m
Ricariche auto elettriche Ricariche auto elettriche
Eneldrive Stazione F.S. Pontedera C.T.
220 m
Eneldrive Municipio di Pontedera
240 m
Eneldrive Via Turati Park
440 m
Eneldrive COOP Centro Pontedera
1,1 Km
Eneldrive Parcheggio del Cimitero
1,1 Km
Scuole Scuole
Scuola Media Statale Antonio Pacinotti
120 m
Polo Sant'Anna Valdera
140 m
Scuola Media Statale Curtatone e Montanara
520 m
Università della terza età
530 m
ITGC "Enrico Fermi"
690 m
Farmacia Farmacia
Farmacie comunali
210 m
Farmacia Dottor Nanni
360 m
Farmacia comunale
410 m
Farmacia
510 m
Farmacia Nuova
520 m
Ospedali Ospedali
Ospedale "Felice Lotti"
400 m
Supermercati Supermercati
INCOOP
440 m
EuroSpin
1,1 Km
COOP
1,2 Km
Lidl
1,3 Km
Panorama
1,5 Km
Negozi Negozi
Negozi
180 m
Caffeteria pasticceria Gori
340 m
Marsili Corso Matteotti
510 m
Cucina Gina Primi Piatti
540 m
Melandia
650 m
Bar Bar
Bar
200 m
Chimney Pub di Fogli Giacomo
540 m
Caffè degli artisti
780 m
"Abbey Road Pub"
790 m
Amalia Laghi
2,6 Km
Ristoranti Ristoranti
La Felicità
180 m
La Pergola
190 m
L'Aereoscalo
210 m
Pasquale
210 m
Ciao Ciao
230 m
Mostra tutto

Caratteristiche

Rif.:
61111366
Piano:
Terra di 1
Totale piani:
1
Posti auto:
3
Condizionamento:
Autonomo
Ascensore:
No
Mostra tutto
Prezzo Prezzo
€ 239.000
Rata mutuo Rata mutuo
€ 1.134 / mese
Spese annue Spese annue
€ 0
Proponi il tuo prezzoProponi il tuo prezzo

Altre caratteristiche

Descrizione dei locali
Bagno Con Finestra

Classe Energetica

F
F
F
F
F
F
F
F
F
EP globale non rinnovabile:
154.00 kW h/m² anno
EP globale rinnovabile:
0.00 kW h/m² anno
EP invernale del fabbricato:
EP estiva del fabbricato:
Anno di costruzione:
1900
Riscaldamento:
Autonomo
Tipo impianto:
Ad aria
Tipo alimentazione:
Aria

Prezzo ridotto di €1 (5%%)

Ti interessa visionare l'immobile?

Fissa un appuntamento  Fissa un appuntamento

Richiedi informazioni

Clicca su Leggi per aprire l'informativa
* Questi campi sono obbligatori

Calcola il tuo mutuo

Semplice e senza impegno
Anticipo

( % )
Mutuo

( % )

pochi semplici passi

inserisci i tuoi dati
Questionario completato
Grazie per aver richiesto un appuntamento senza impegno con un nostro Consulente del Credito e Assicurativo.

Hai inserito correttamente tutti i dati necessari e a breve riceverai una e-mail con un link da convalidare per inviare i tuoi dati.
Affiliato
Impresa Valdera Srl
Via Sandro Pertini, 28 56012 Calcinaia (PI)

Il nostro staff


  • Asia Mozzachiodi
    Coordinatrice

  • Leonardo Guerrini
    Affiliato
Via Sandro Pertini, 28 56012 Calcinaia (PI)
Zona: Calcinaia - Pontedera
Mostra su mappa
Affiliato
Impresa Valdera Srl
Via Sandro Pertini, 28 56012 Calcinaia (PI)

2026 Tecnocasa Franchising S.p.A. - P. IVA 08365160152 - Via Monte Bianco 60/A 20089 Rozzano (MI). Ogni agenzia ha un proprio titolare ed è autonoma. Privacy policy | Policy utilizzo | Cookie policy