Laboratorio in vendita

Pontedera, Via Friuli - Zona Industriale Gello
€ 115.000
2 locali 2 locali
188 Mq 188 Mq
2 bagni 2 bagni

Laboratorio in vendita

Pontedera, Via Friuli - Zona Industriale Gello

Descrizione annuncio

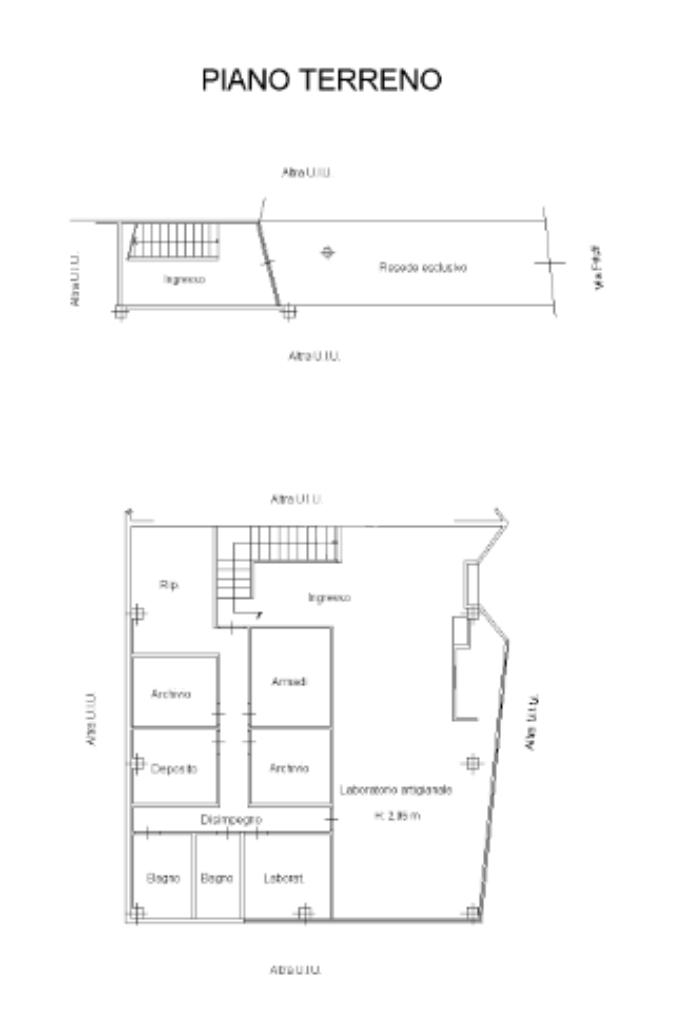
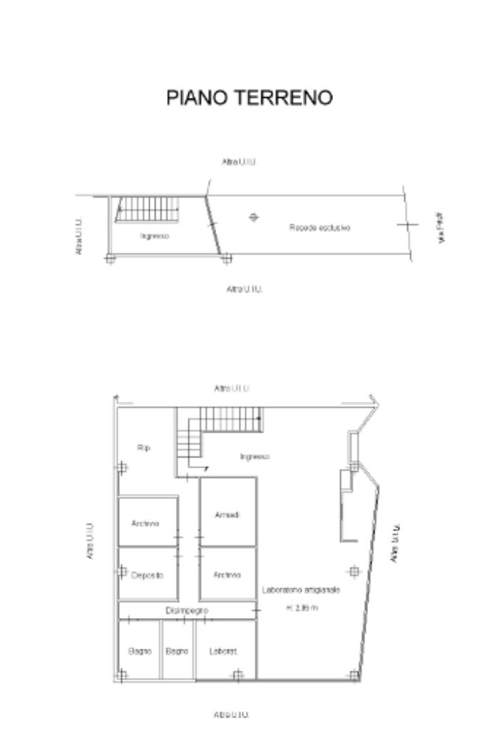
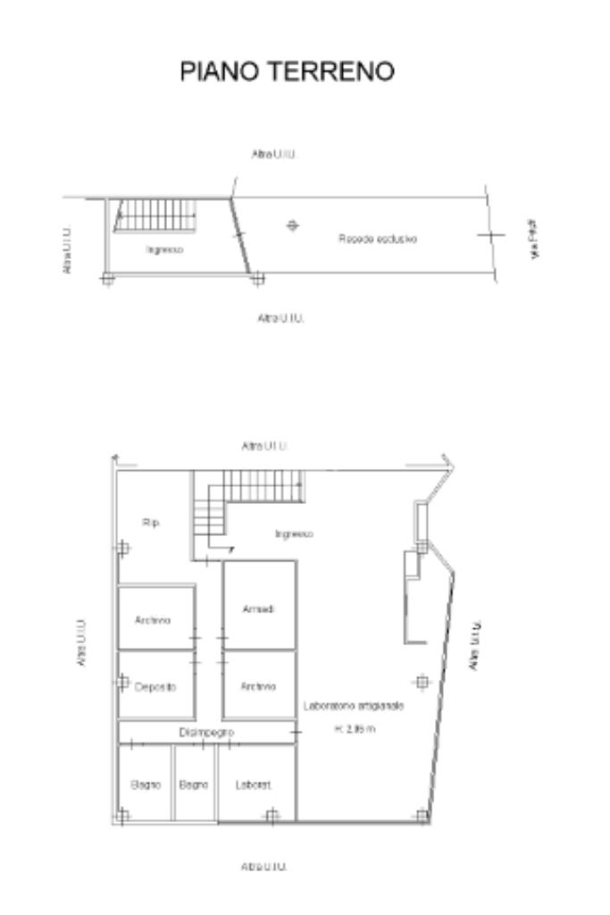
Pontedera – Via Friuli
Laboratorio uso ufficio/direzionale di circa 190 mq con ingresso indipendente
In zona strategica e perfettamente collegata, a pochi passi dall’ingresso FI-PI-LI, proponiamo in vendita laboratorio ad uso ufficio/direzionale di circa 190 mq, situato al primo piano con ingresso indipendente fronte strada.
L’immobile si caratterizza per l’accesso autonomo al piano terra, con rampa di scale esclusiva che conduce al piano primo, dove si sviluppa un ampio open space, facilmente rimodulabile e suddivisibile in più ambienti operativi in base alle esigenze dell’attività.
Gli spazi sono luminosi e versatili, ideali per studi professionali, società di servizi, coworking, showroom o sedi direzionali.
Completano la proprietà due servizi igienici, entrambi dotati di doccia.
È inoltre presente impianto di condizionamento già installato, rendendo l’immobile immediatamente utilizzabile.
La posizione fronte strada garantisce ottima visibilità e facilità di accesso, oltre alla vicinanza immediata alle principali arterie di collegamento, elemento particolarmente interessante per chi necessita di spostamenti rapidi tra Pontedera e le aree produttive limitrofe.

Info e visite
Per ulteriori informazioni o per fissare un appuntamento contatta Leonardo Guerrini al 320 7028306.
Assumiamo ragazzi e ragazze, anche senza esperienza, da avviare alla professione di Agente Immobiliare. Contattaci per maggiori informazioni.

Mostra tutto

Nelle vicinanze

Trasporto pubblico Trasporto pubblico
Trasporto pubblico
1,5 Km
Ricariche auto elettriche Ricariche auto elettriche
Giadil Consulting - Noleggio a lungo Termine | EnelX
1,4 Km
COOP Pontedera | EnelX
2,5 Km
Eneldrive COOP Centro Pontedera
2,8 Km
Eneldrive Parcheggio Via Maremmana
3,0 Km
Scuole Scuole
Scuole
1,6 Km
Farmacia Farmacia
Farmacia Toscana
1,8 Km
Farmacia Comunale Le Melorie
1,9 Km
Supermercati Supermercati
COOP
2,6 Km
Lidl
2,7 Km
SIMPLY SMA
2,7 Km
Centro commerciale Corte Nuva
2,7 Km
Zona Pontedera
2,9 Km
Negozi Negozi
COOP
1,8 Km
OVS
2,7 Km
Bar Bar
Bar
1,5 Km
Gens
2,0 Km
Ristoranti Ristoranti
Ristoranti
990 m
Autogrill Gello
1,1 Km
Mostra tutto

Caratteristiche

Rif.:
61176425
Piano:
1 di 1 (Piano basso)
Condizionamento:
Autonomo
Ascensore:
No
Riscaldamento:
Autonomo
Libero:
Mostra tutto
Prezzo Prezzo
€ 115.000
Rata mutuo Rata mutuo
€ 537 / mese
Spese annue Spese annue
€ 0
Proponi il tuo prezzoProponi il tuo prezzo

Altre caratteristiche

Descrizione dei locali
Bagno Con Finestra

Classe Energetica

G
G
G
G
G
G
G
G
G
EP globale non rinnovabile:
0.00 kW h/m² anno
EP globale rinnovabile:
0.00 kW h/m² anno
EP invernale del fabbricato:
EP estiva del fabbricato:
Anno di costruzione:
2005
Riscaldamento:
Autonomo
Tipo impianto:
Ad aria
Tipo alimentazione:
Altro

Ti interessa visionare l'immobile?

Fissa un appuntamento  Fissa un appuntamento

Richiedi informazioni

Clicca su Leggi per aprire l'informativa
* Questi campi sono obbligatori

Calcola il tuo mutuo

Semplice e senza impegno
Anticipo

( % )
Mutuo

( % )

pochi semplici passi

inserisci i tuoi dati
Questionario completato
Grazie per aver richiesto un appuntamento senza impegno con un nostro Consulente del Credito e Assicurativo.

Hai inserito correttamente tutti i dati necessari e a breve riceverai una e-mail con un link da convalidare per inviare i tuoi dati.
Affiliato
Impresa Valdera Srl
Via Sandro Pertini, 28 56012 Calcinaia (PI)

Il nostro staff


  • Asia Mozzachiodi
    Coordinatrice

  • Leonardo Guerrini
    Affiliato
Via Sandro Pertini, 28 56012 Calcinaia (PI)
Zona: Calcinaia - Pontedera
Mostra su mappa
Affiliato
Impresa Valdera Srl
Via Sandro Pertini, 28 56012 Calcinaia (PI)

2026 Tecnocasa Franchising S.p.A. - P. IVA 08365160152 - Via Monte Bianco 60/A 20089 Rozzano (MI). Ogni agenzia ha un proprio titolare ed è autonoma. Privacy policy | Policy utilizzo | Cookie policy