Laboratorio in vendita

San Miniato, Via Zara - Corazzano
€ 120.000
10 locali 10 locali
663 Mq 663 Mq
1 bagno 1 bagno

Laboratorio in vendita

San Miniato, Via Zara - Corazzano

Descrizione annuncio

CORAZZANO – SAN MINIATO (PI)
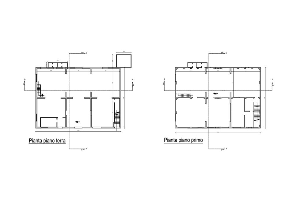
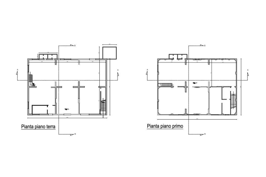
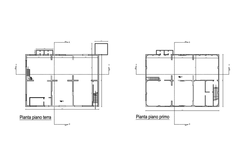
Ex Tabaccheria con ampio resede e potenzialità di riconversione

Proponiamo in vendita a Corazzano, frazione di San Miniato, un edificio ex tabaccheria disposto su due livelli per complessivi 660 mq, corredato da resede esclusivo su due lati di circa 1.400 mq.

L’immobile si presta a diverse soluzioni di recupero e valorizzazione, con possibilità di frazionamento in più unità immobiliari a destinazione residenziale, commerciale, direzionale o turistico-ricettiva, come previsto dal Regolamento Urbanistico del Comune di San Miniato.
Tutte le ipotesi progettuali prevedono una ristrutturazione integrale e la possibilità di realizzare box auto, posti auto e spazi esterni.

La proprietà si trova a circa 400 metri dal centro di Corazzano, zona servita da banca, posta, farmacia, negozi e ristoranti, in posizione collinare e panoramica tipica del paesaggio toscano.
Ben collegata con la SGC FI-PI-LI (10 minuti) e a circa 45 km da Firenze, Pisa e Siena, rappresenta una soluzione interessante anche per investitori o per chi cerca un progetto di rigenerazione immobiliare nel cuore della Toscana.

In agenzia sono disponibili ipotesi progettuali e planimetrie per la realizzazione di unità residenziali.

Per informazioni e visite:
320 7028306

Leonardo Guerrini – Tecnocasa Impresa

Mostra tutto

Nelle vicinanze

Farmacia Farmacia
San Giovanni
450 m
Mostra tutto

Caratteristiche

Rif.:
61135054
Piano:
2 di 2 (Piano terra con giardino)
Box:
1
Posti auto:
2
Condizionamento:
Autonomo
Ascensore:
No
Mostra tutto
Prezzo Prezzo
€ 120.000
Rata mutuo Rata mutuo
€ 570 / mese
Spese annue Spese annue
€ 0
Proponi il tuo prezzoProponi il tuo prezzo

Altre caratteristiche

Descrizione dei locali
Bagno Con Finestra

Classe Energetica

G
G
G
G
G
G
G
G
G
EP globale non rinnovabile:
0.00 kW h/m² anno
EP globale rinnovabile:
0.00 kW h/m² anno
EP invernale del fabbricato:
EP estiva del fabbricato:
Anno di costruzione:
1900
Riscaldamento:
Autonomo
Tipo impianto:
Ad aria
Tipo alimentazione:
Aria

Ti interessa visionare l'immobile?

Fissa un appuntamento  Fissa un appuntamento

Richiedi informazioni

Clicca su Leggi per aprire l'informativa
* Questi campi sono obbligatori

Calcola il tuo mutuo

Semplice e senza impegno
Anticipo

( % )
Mutuo

( % )

pochi semplici passi

inserisci i tuoi dati
Questionario completato
Grazie per aver richiesto un appuntamento senza impegno con un nostro Consulente del Credito e Assicurativo.

Hai inserito correttamente tutti i dati necessari e a breve riceverai una e-mail con un link da convalidare per inviare i tuoi dati.
Affiliato
Impresa Valdera Srl
Via Sandro Pertini, 28 56012 Calcinaia (PI)

Il nostro staff


  • Asia Mozzachiodi
    Coordinatrice

  • Leonardo Guerrini
    Affiliato
Via Sandro Pertini, 28 56012 Calcinaia (PI)
Zona: Calcinaia - Pontedera
Mostra su mappa
Affiliato
Impresa Valdera Srl
Via Sandro Pertini, 28 56012 Calcinaia (PI)

2026 Tecnocasa Franchising S.p.A. - P. IVA 08365160152 - Via Monte Bianco 60/A 20089 Rozzano (MI). Ogni agenzia ha un proprio titolare ed è autonoma. Privacy policy | Policy utilizzo | Cookie policy